Страница 1 из 2
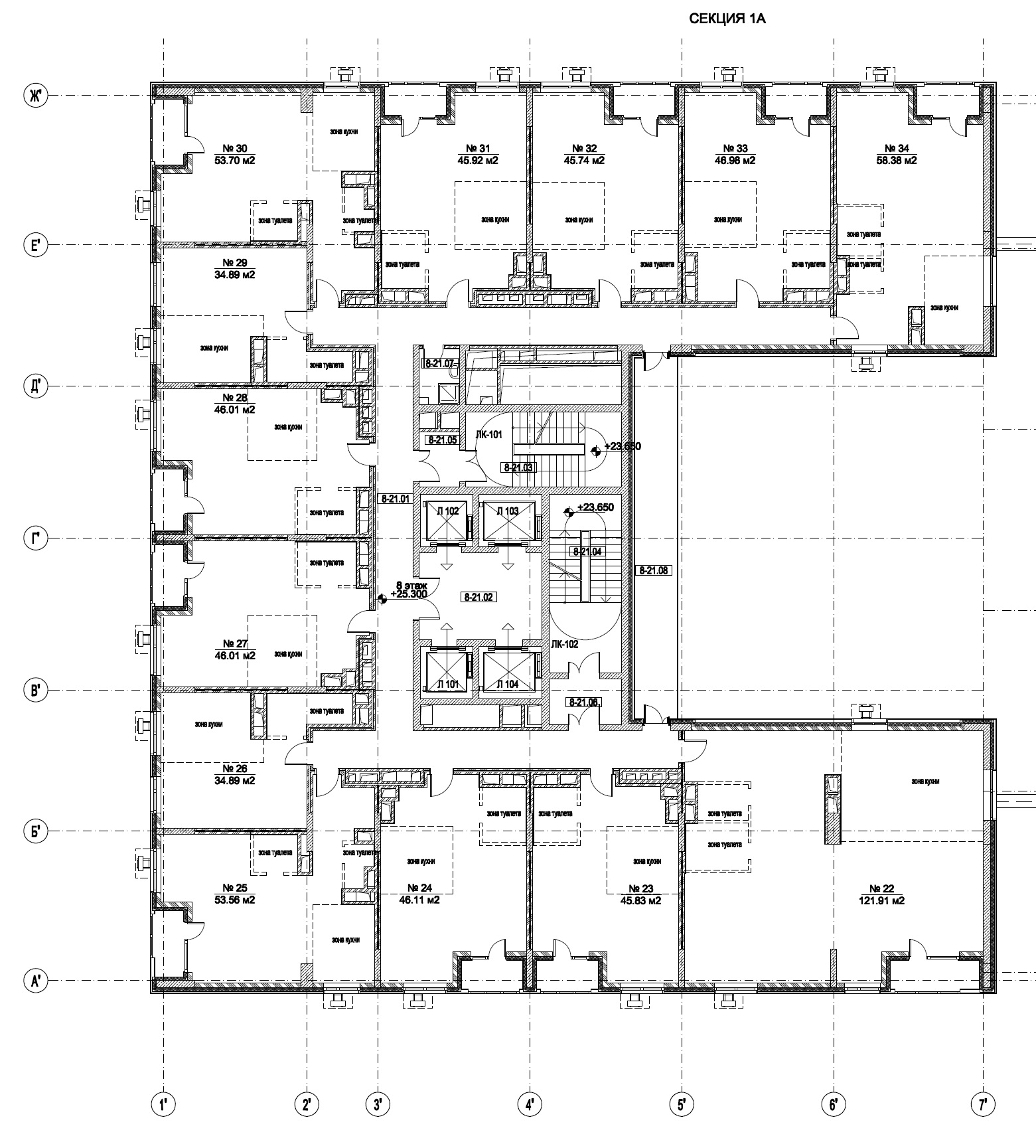
Планировка ЖК Фили Град корпус 1А
Добавлено: 12 май 2014, 10:20
Ser
Планировка "ЖК Фили Град" корпус 1А:

- Планировка ЖК Фили Град корпус 1А
- FiliGrad корпус 1А.jpg (573.21 КБ) 43915 просмотров
и в формате PDF:
- FiliGrad_1А.pdf
- Планировка ЖК Фили Град корпус 1А (pdf)
- (775.77 КБ) 1398 скачиваний
Теперь кому интересно можем обсудить корпус 1А, в том числе как же окна во внутрь здания - но не все так плохо есть еще пара окон наружу, плюс общедоступный балкон по ширине внутренней полости?
Re: Планировка ЖК Фили Град корпус 1А
Добавлено: 12 май 2014, 14:23
maxed
а есть такой же подробный план 2А?
С уважением
Re: Планировка ЖК Фили Град корпус 1А
Добавлено: 12 май 2014, 15:38
Ser
maxed писал(а):а есть такой же подробный план 2А?
С уважением
Теперь подробный план для 2-го корпуса в отдельной теме
viewtopic.php?f=15&p=1351
Re: Планировка ЖК Фили Град корпус 1А
Добавлено: 17 мар 2015, 13:48
Katerina
Присмотрели в корпусе 1А себе квартиру. Рассматривали вариант двушки, метраж конечно не такой большой как в корпусе №3, но пойдет. И на сколько я понимаю грубо говоря квартиры в 60 метров все идут окнами на другой корпус, т.е. менее половины окна вроде нормальный вид, а вторая половина на корпус. Очень это меня как-то расстроило, как вообще так можно было сделать, ведь расстояние от корпуса до корпуса очень маленькое.
Re: Планировка ЖК Фили Град корпус 1А
Добавлено: 23 мар 2015, 21:05
Лилия
Да, мы тоже смотрели на двушку 60 кв, но там действительно одно окно выходит на стену. Еще мне понравилось окно в коридоре
Еще одно окно - это всегда хорошо, но когда оно тоже на стену, уже не так интересно.
Re: Планировка ЖК Фили Град корпус 1А
Добавлено: 25 мар 2015, 12:45
Katerina
Лилия писал(а):Да, мы тоже смотрели на двушку 60 кв, но там действительно одно окно выходит на стену. Еще мне понравилось окно в коридоре
Еще одно окно - это всегда хорошо, но когда оно тоже на стену, уже не так интересно.
Мы смотрели на 5 этаже квартиру, там этого окна нет, но менеджер нам говорил, что на остальных на всех в коридоре оно будет
Re: Планировка ЖК Фили Град корпус 1А
Добавлено: 25 мар 2015, 13:00
Katerina
Кстати хотела еще уточнить. Может кто знает, если продлить комнату и не делать лоджию, то как быть на счет окон, их скорее всего придется заменить, так как холодно будет или же все-таки там нормальные стоят? И можно ли вообще это сделать?
Re: Планировка ЖК Фили Град корпус 1А
Добавлено: 25 мар 2015, 13:32
vorrrona
Katerina писал(а):Кстати хотела еще уточнить. Может кто знает, если продлить комнату и не делать лоджию, то как быть на счет окон, их скорее всего придется заменить, так как холодно будет или же все-таки там нормальные стоят? И можно ли вообще это сделать?
Peperonni писал(а):romten писал(а):Artur писал(а):Как думаете, когда можно будет начинать ремонт?
сентябрь-октябрь как мне кажется, это в лучшем случае, детсад не построен, не везде стояки смонтированы, входные дыры для внешних лифтов еще не заделаны.
От куда информация, что стояки не все смонтированы? Лифты должны к концу мая доделать.
По поводу остекления балкона - одинарное стекло, но будет возможность заменить стекло стеклопакетом. Конструкции рамы позволяют.
Re: Планировка ЖК Фили Град корпус 1А
Добавлено: 25 мар 2015, 14:01
yard
А можно ли вообще комнату продолжать на лоджию/балкон? Там же нужно будет какие-то манипуляции со стеной производить, как минимум оконный блок убирать. А, кажется, были жесткие ограничения на изменения фасада.
Re: Планировка ЖК Фили Град корпус 1А
Добавлено: 25 мар 2015, 18:58
Peperonni
yard писал(а):А можно ли вообще комнату продолжать на лоджию/балкон? Там же нужно будет какие-то манипуляции со стеной производить, как минимум оконный блок убирать. А, кажется, были жесткие ограничения на изменения фасада.
Согласовать перепланировку согласно закона.
Re: Планировка ЖК Фили Град корпус 1А
Добавлено: 26 мар 2015, 11:43
Ser
Лилия писал(а):Да, мы тоже смотрели на двушку 60 кв, но там действительно одно окно выходит на стену. Еще мне понравилось окно в коридоре
Еще одно окно - это всегда хорошо, но когда оно тоже на стену, уже не так интересно.
Фотки этого колодца в 1А:

1А
Re: Планировка ЖК Фили Град корпус 1А
Добавлено: 26 мар 2015, 11:47
Katerina
Ser писал(а):Лилия писал(а):Да, мы тоже смотрели на двушку 60 кв, но там действительно одно окно выходит на стену. Еще мне понравилось окно в коридоре
Еще одно окно - это всегда хорошо, но когда оно тоже на стену, уже не так интересно.
Фотки этого колодца в 1А:

1А
Да, кому-то больше не повезло, просто в стену окна и никакого света...
Re: Планировка ЖК Фили Град корпус 1А
Добавлено: 27 май 2015, 16:26
Ser
Re: Планировка ЖК Фили Град корпус 1А
Добавлено: 28 май 2015, 01:33
Лилия
Большое спасибо за план, я его очень ждала!
Этот план ведь отражает состояние и для других этажей, не только для пятого? Глобальное различие ведь только в положении окон может быть?
Re: Планировка ЖК Фили Град корпус 1А
Добавлено: 28 май 2015, 23:21
Sergey_F
тоже самое с подробным описанием
Re: Планировка ЖК Фили Град корпус 1А
Добавлено: 03 ноя 2015, 00:12
morflot
Примечательно, что, основываясь на данных планов, выложенных в теме, общая площадь моей квартиры получается меньше заявленной продавцом и впоследствии отраженной в договоре. Так, общая площадь моей квартиры обозначена в договоре равной 47,21 вместе с площадью балкона/лоджии с учетом понижающих коэффициентов. Однако, основываясь на данных плана, оказывается, что площадь моей квартиры равна этой же величине, но без учета понижающих коэффициентов для балкона/лоджии.
То есть я предполагал за счет присоединения лоджии получить реальную площадь около 49 метров, теперь же выясняется (если выложенный в теме план действительно применим для всех этажей), что даже с учетом присоединения лоджии 47,21 это максимум, на который я могу рассчитывать. А без лоджии получается вообще 44 метра.
Ясно, что площадь квартир незначительно разнится от этажа к этажу. Если у кого есть - выложите планы других этажей для сравнения метража, пожалуйста.
Re: Планировка ЖК Фили Град корпус 1А
Добавлено: 03 ноя 2015, 10:12
Fed31
morflot писал(а):Примечательно, что, основываясь на данных планов, выложенных в теме, общая площадь моей квартиры получается меньше заявленной продавцом и впоследствии отраженной в договоре. Так, общая площадь моей квартиры обозначена в договоре равной 47,21 вместе с площадью балкона/лоджии с учетом понижающих коэффициентов. Однако, основываясь на данных плана, оказывается, что площадь моей квартиры равна этой же величине, но без учета понижающих коэффициентов для балкона/лоджии.
То есть я предполагал за счет присоединения лоджии получить реальную площадь около 49 метров, теперь же выясняется (если выложенный в теме план действительно применим для всех этажей), что даже с учетом присоединения лоджии 47,21 это максимум, на который я могу рассчитывать. А без лоджии получается вообще 44 метра.
Ясно, что площадь квартир незначительно разнится от этажа к этажу. Если у кого есть - выложите планы других этажей для сравнения метража, пожалуйста.
Я при покупке делал замеры, фактически все сходиться с договором. Скорее всего план не отражает на сто процентов реальную картину. Мерили час электронной линейкой, так что не переживайте.
Re: Планировка ЖК Фили Град корпус 1А
Добавлено: 03 ноя 2015, 23:06
morflot
Fed31 писал(а):morflot писал(а):Примечательно, что, основываясь на данных планов, выложенных в теме, общая площадь моей квартиры получается меньше заявленной продавцом и впоследствии отраженной в договоре. Так, общая площадь моей квартиры обозначена в договоре равной 47,21 вместе с площадью балкона/лоджии с учетом понижающих коэффициентов. Однако, основываясь на данных плана, оказывается, что площадь моей квартиры равна этой же величине, но без учета понижающих коэффициентов для балкона/лоджии.
То есть я предполагал за счет присоединения лоджии получить реальную площадь около 49 метров, теперь же выясняется (если выложенный в теме план действительно применим для всех этажей), что даже с учетом присоединения лоджии 47,21 это максимум, на который я могу рассчитывать. А без лоджии получается вообще 44 метра.
Ясно, что площадь квартир незначительно разнится от этажа к этажу. Если у кого есть - выложите планы других этажей для сравнения метража, пожалуйста.
Я при покупке делал замеры, фактически все сходиться с договором. Скорее всего план не отражает на сто процентов реальную картину. Мерили час электронной линейкой, так что не переживайте.
Спасибо, успокоили!
А не подскажете - какой у нас применяется коэффициент при расчете площади лоджии/балкона - 0,3 или 0,5?
Re: Планировка ЖК Фили Град корпус 1А
Добавлено: 04 ноя 2015, 00:50
Fed31
morflot писал(а):Fed31 писал(а):morflot писал(а):Примечательно, что, основываясь на данных планов, выложенных в теме, общая площадь моей квартиры получается меньше заявленной продавцом и впоследствии отраженной в договоре. Так, общая площадь моей квартиры обозначена в договоре равной 47,21 вместе с площадью балкона/лоджии с учетом понижающих коэффициентов. Однако, основываясь на данных плана, оказывается, что площадь моей квартиры равна этой же величине, но без учета понижающих коэффициентов для балкона/лоджии.
То есть я предполагал за счет присоединения лоджии получить реальную площадь около 49 метров, теперь же выясняется (если выложенный в теме план действительно применим для всех этажей), что даже с учетом присоединения лоджии 47,21 это максимум, на который я могу рассчитывать. А без лоджии получается вообще 44 метра.
Ясно, что площадь квартир незначительно разнится от этажа к этажу. Если у кого есть - выложите планы других этажей для сравнения метража, пожалуйста.
Я при покупке делал замеры, фактически все сходиться с договором. Скорее всего план не отражает на сто процентов реальную картину. Мерили час электронной линейкой, так что не переживайте.
Спасибо, успокоили!
А не подскажете - какой у нас применяется коэффициент при расчете площади лоджии/балкона - 0,3 или 0,5?
На сколько я помню 0,5
Re: Планировка ЖК Фили Град корпус 1А
Добавлено: 04 ноя 2015, 17:00
Sergey_F
morflot писал(а):Fed31 писал(а):morflot писал(а):Примечательно, что, основываясь на данных планов, выложенных в теме, общая площадь моей квартиры получается меньше заявленной продавцом и впоследствии отраженной в договоре. Так, общая площадь моей квартиры обозначена в договоре равной 47,21 вместе с площадью балкона/лоджии с учетом понижающих коэффициентов. Однако, основываясь на данных плана, оказывается, что площадь моей квартиры равна этой же величине, но без учета понижающих коэффициентов для балкона/лоджии.
То есть я предполагал за счет присоединения лоджии получить реальную площадь около 49 метров, теперь же выясняется (если выложенный в теме план действительно применим для всех этажей), что даже с учетом присоединения лоджии 47,21 это максимум, на который я могу рассчитывать. А без лоджии получается вообще 44 метра.
Ясно, что площадь квартир незначительно разнится от этажа к этажу. Если у кого есть - выложите планы других этажей для сравнения метража, пожалуйста.
Я при покупке делал замеры, фактически все сходиться с договором. Скорее всего план не отражает на сто процентов реальную картину. Мерили час электронной линейкой, так что не переживайте.
Спасибо, успокоили!
А не подскажете - какой у нас применяется коэффициент при расчете площади лоджии/балкона - 0,3 или 0,5?