Страница 1 из 1
Планировка ЖК Фили Град корпус 2
Добавлено: 12 май 2014, 16:01
Ser
В этой теме обсуждаем планировки ЖК "Фили Град" Корпус 2
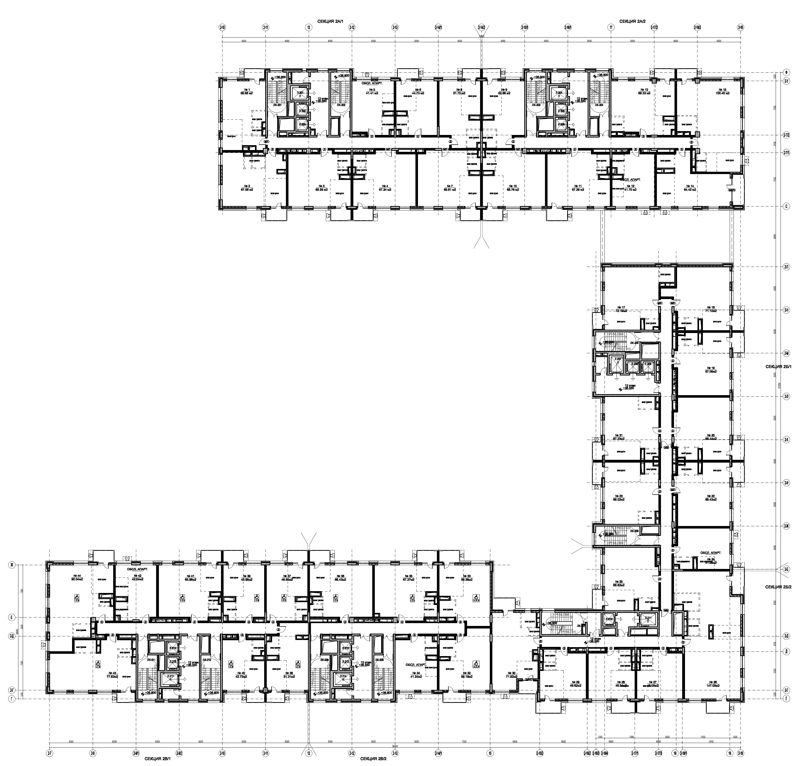
Типовая планировка (4-14 этаж):

- ЖК "Фили Град" Корпус 2
- Фили Град Корпус 2_125.jpg (1.35 МБ) 37470 просмотров
В PDF более детально можно рассмотреть:
В данной теме стараемся весь 2 корпус рассмотреть, при необходимости создаем тему для конкретных корпусов 2А, 2Б и 2В
Re: Планировка ЖК Фили Град корпус 2
Добавлено: 12 май 2014, 16:17
maxed
почему маркировка дверей разная? у одних марка - Д у других марка - МЛ ???
Re: Планировка ЖК Фили Град корпус 2
Добавлено: 12 май 2014, 16:30
Peperonni
maxed писал(а):почему маркировка дверей разная? у одних марка - Д у других марка - МЛ ???
Это не марка двери, а конструкция дверного проема.
Re: Планировка ЖК Фили Град корпус 2
Добавлено: 13 май 2014, 10:18
Peperonni
Ни кто не спрашивал у продавцов, что некоторые квартиры на последних этажах имеют свои выходы на крышу. Какое там дается пространство?
Re: Планировка ЖК Фили Град корпус 2
Добавлено: 13 май 2014, 10:27
maxed
а чем эти конструкции проемов отличаются?
Re: Планировка ЖК Фили Град корпус 2
Добавлено: 13 май 2014, 12:07
serg1958
Секция 2B/2 (21 этаж) должна быть крайней. На рисунке - наоборот. Непонятно, как вычисляется площадь - у меньших по габаритом квартир она вроде как больше (если сравнить некоторые двушки). И что такое ОБСЛ. АПАРТ.?
Re: Планировка ЖК Фили Град корпус 2
Добавлено: 13 май 2014, 12:24
maxed
обсл. апарт - это по проекту комната обслуживающего (гостиницу) персонала и комната хранения уборочного инвентаря....тряпки мойки швабры и т.д. ....чтобы пройти гос.экспертизу....так по нормам положено - у нас же гостиница!!!
Re: Планировка ЖК Фили Град корпус 2
Добавлено: 16 май 2014, 11:27
serg1958
Кто-нибудь уже измерял ширину х глубину х высоту квартиры на объекте? Этому плану соответствует?
Re: Планировка ЖК Фили Град корпус 2
Добавлено: 22 май 2014, 16:27
a123
у кого-нибудь есть информация когда появятся внутренние размеры квартир/апартаментов?
также вижу по фото от 21 мая, любезно выложенным vorrrona, размер стояка, но на плане помимо стояка еще и рядом (к нему примыкает) вроде бы вентиляция есть... Кто-нибудь может прокомментировать почему на фото для нее выхода вниз и вверх не сделали? Как вариант, у vorrrona такая планировка, что стояк и вентиляция в разных местах (не примыкают друг к другу), но что-то с ходу я такую планировку не нашел...
Re: Планировка ЖК Фили Град корпус 2
Добавлено: 22 май 2014, 16:36
Ser
a123 писал(а):у кого-нибудь есть информация когда появятся внутренние размеры квартир/апартаментов?
Размеры есть, попробуй написать в личку Peperonni вот:
viewtopic.php?f=15&t=7&start=20#p1159
Re: Планировка ЖК Фили Град корпус 2
Добавлено: 22 май 2014, 17:04
Ser
a123 писал(а):у кого-нибудь есть информация когда появятся внутренние размеры квартир/апартаментов?
также вижу по фото от 21 мая, любезно выложенным vorrrona, размер стояка, но на плане помимо стояка еще и рядом (к нему примыкает) вроде бы вентиляция есть... Кто-нибудь может прокомментировать почему на фото для нее выхода вниз и вверх не сделали? Как вариант, у vorrrona такая планировка, что стояк и вентиляция в разных местах (не примыкают друг к другу), но что-то с ходу я такую планировку не нашел...
Вы наверно не с тем апартаментом сравнивали, у него похоже в углу вентиляция которая еще незакрыта.

хотя посмотрел еще раз и не увидел отверстия в полу )) а так это же второй этаж
Re: Планировка ЖК Фили Град корпус 2
Добавлено: 22 май 2014, 17:09
vorrrona
a123 писал(а):у кого-нибудь есть информация когда появятся внутренние размеры квартир/апартаментов?
также вижу по фото от 21 мая, любезно выложенным vorrrona, размер стояка, но на плане помимо стояка еще и рядом (к нему примыкает) вроде бы вентиляция есть... Кто-нибудь может прокомментировать почему на фото для нее выхода вниз и вверх не сделали? Как вариант, у vorrrona такая планировка, что стояк и вентиляция в разных местах (не примыкают друг к другу), но что-то с ходу я такую планировку не нашел...
это апартамент №7 69.51квм секция 2а\1
Re: Планировка ЖК Фили Град корпус 2
Добавлено: 22 май 2014, 17:09
a123
Точно!
не заметил сразу - спасибо за инф.!
Re: Планировка ЖК Фили Град корпус 2
Добавлено: 19 дек 2017, 10:40
Александр2016
Ser писал(а): ↑12 май 2014, 16:01
В этой теме обсуждаем планировки ЖК "Фили Град" Корпус 2
Типовая планировка (4-14 этаж):
Фили Град Корпус 2_125.jpg
В PDF более детально можно рассмотреть:
2А_12_этаж.pdf
В данной теме стараемся весь 2 корпус рассмотреть, при необходимости создаем тему для конкретных корпусов 2А, 2Б и 2В
А в 2б получаеться все апартаменты, квартир нет?
Re: Планировка ЖК Фили Град корпус 2
Добавлено: 19 дек 2017, 10:51
Ser
Александр2016 писал(а): ↑19 дек 2017, 10:40
А в 2б получаеться все апартаменты, квартир нет?
Корпус 2Б:
Количество апартаментов – 160 шт.;
Количество квартир - 36 шт.;